페이지 정보

대형백필터
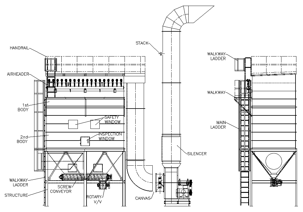
대형백필터 집진기
제품설명
제품설명
키워드
원통형 백필터, 심플한 구조, 저렴한 설치, 자동 탈리, 장착/탈착 용이, 환경 인허가 가능
사용처
대형백필터 집진기는 평면연마, 성형연마, 분쇄, 드릴, 아크릴가공, 재단, 파쇄, 석재가공, 절단, 절삭, 그라인더, 혼합작업, 포장작업 등 비교적 입자가 큰 분진이 발생하는 작업에서 범용으로 사용할 수 있는 집진기로 가격대비 성능이 우수한 제품입니다.
특징
제품 특징
-
- 필터:
- P.E. 필터를 사용하여 필터교환이 비교적 간단하며 내마모성과 인장강도가 뛰어나 사용수명이 비교적 길고 가격이 저렴하여 추후 필터교체 시 부담이 적음
-
- BAG CAGE:
- FILTER BAG 내부에서 BAG의 형상을 유지시키는 역할
-
- VENTURI:
- BAG CAGE의 상부에 부착되어 노즐로 유입되는 공기의 유량 및 유속을 향상시키는 역할
- BAG 상부에 집중되는 압력을 골고루 분산시켜 필터에 끝 부분까지 탈리가 되도록 함
-
- 에어헤더:
- 집진기 TYPE이 AIR PULSE JET TYPE으로 에어탱크의 압축공기를 자동으로 분사하여 필터를 효율적으로 청소하여 필터 수명을 연장시킴
- 분진양이 많거나 연속가동을 하는 공정에 주로 사용
-
- DIAPHRAGM V/V:
- 밸브의 신속한 개폐를 위해 TIMER CONTROLLER와 절연등급 B종 코일을 사용
-
- TIMER:
- DIAPHRAGM V/V를 효율적으로 제어하기 위한 장치로 ON/OFF TIME 및 구동숫자를 SETTING 하여 설정에 따라 순차적으로 구동전류를 구동함.
-
- MANOMETER:
- 이상 전류로 인한 제품의 손상을 방지할 수 있음
- 장비 가동 후 자동 탈리를 통해 필터의 수명을 향상시킬 수 있음
- 로컬스위치 또는 PLC 등을 사용하여 원격 컨트롤 가능
- 과전류, 과차압 시 제품의 손상 방지 및 에러 표시 가능
동영상
설치시공사례
더보기

구매하기



